Property
Beds
None
Full Baths
None
1/2 Baths
None
Year Built
2025
Sq.Footage
33,508
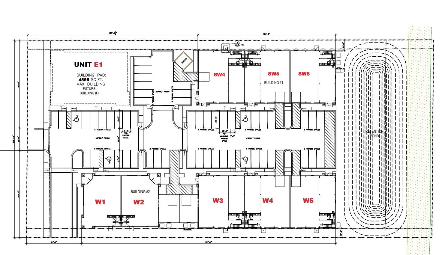
PRE-LEASING!! Coming soon in 2025 a stunning commercial retail complex with three street-front retail spaces (one as a stand alone building or can be divided up to 3 spaces) and six Class A commercial retail, showroom, warehouse, flex spaces with 24' ceilings and full roll-up doors. Perfect for your retail, service and wholesale business.This exceptional commercial property boasts a prime location in booming Santa Rosa Beach offering high visibility along Hwy 98 corridor in South Walton.With 3700 to 5200 sq. f.t of beautifully designed and acclimated retail space upfront and flex space with modern coastal finishes. Each flex space has a second floor of 730 sq. ft. of office space.Direct access to Hwy 98 for delivery and customer access.Space W1 is pending.
Features & Amenities
Interior
-
Total Bedrooms
N/A
-
Bathrooms
N/A
-
Pet friendly
N/A
Exterior
-
Garage
No
-
Pool
No
Area & Lot
-
Lot Size(acres)
2.4
-
Property Type
Commercial Lease
-
Property Sub Type
Retail
Price
-
Sales Price
$33
-
Zoning
Commercial
-
Sq. Footage
33, 508
-
Price/SqFt
N/A
HOA
-
Association
No
School District
-
Elementary School
N/A
-
Middle School
N/A
-
High School
N/A
Schedule a Showing
Showing scheduled successfully.
Mortgage calculator
Estimate your monthly mortgage payment, including the principal and interest, property taxes, and HOA. Adjust the values to generate a more accurate rate.
Your payment
Principal and Interest:
$
Property taxes:
$
HOA fees:
$
Total loan payment:
$
Total interest amount:
$
Location
County
Walton
Elementary School
Middle School
High School
Listing Courtesy of Jim Ball , Century 21 AllPoints Realty
RealHub Information is provided exclusively for consumers' personal, non-commercial use, and it may not be used for any purpose other than to identify prospective properties consumers may be interested in purchasing. All information deemed reliable but not guaranteed and should be independently verified. All properties are subject to prior sale, change or withdrawal. RealHub website owner shall not be responsible for any typographical errors, misinformation, misprints and shall be held totally harmless.

Real Estate Advisor
MissyOrmand
Call Missy today to schedule a private showing.

* Listings on this website come from the FMLS IDX Compilation and may be held by brokerage firms other than the owner of this website. The listing brokerage is identified in any listing details. Information is deemed reliable but is not guaranteed. If you believe any FMLS listing contains material that infringes your copyrighted work please click here to review our DMCA policy and learn how to submit a takedown request.© 2024 FMLS.

Related Properties
