Property
Beds
None
Full Baths
None
1/2 Baths
None
Year Built
2025
Sq.Footage
70,460
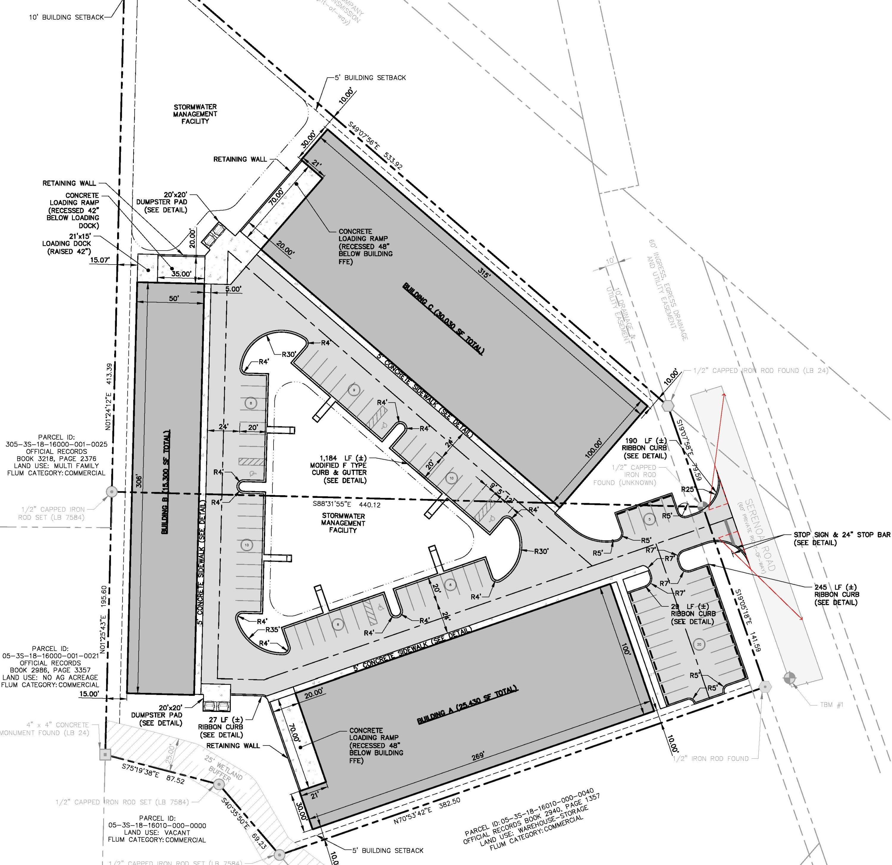
70,460 SF involving (3) freestanding buildings with loading docks under construction in South Walton Commerce Park of the flourishing Santa Rosa Beach, Florida market! The site plan is uploaded to this listing. This subject new development project involves Walton County, Florida parcels: 05-3S-18-16010-000-0050 AND 05-3S-18-16010-000-0060. Occupancy should be achievable by September 2025. Please inquire for further details.
Features & Amenities
Interior
-
Total Bedrooms
N/A
-
Bathrooms
N/A
-
Pet friendly
N/A
Exterior
-
Garage
No
-
Pool
No
Area & Lot
-
Property Type
Commercial Lease
Price
-
Sales Price
$110,000
-
Zoning
Industrial
-
Sq. Footage
70, 460
-
Price/SqFt
$1
HOA
-
Association
No
School District
-
Elementary School
N/A
-
Middle School
N/A
-
High School
N/A
Schedule a Showing
Showing scheduled successfully.
Mortgage calculator
Estimate your monthly mortgage payment, including the principal and interest, property taxes, and HOA. Adjust the values to generate a more accurate rate.
Your payment
Principal and Interest:
$
Property taxes:
$
HOA fees:
$
Total loan payment:
$
Total interest amount:
$
Location
County
Walton
Elementary School
Middle School
High School
Listing Courtesy of John Paul Somers , Somers & Company
RealHub Information is provided exclusively for consumers' personal, non-commercial use, and it may not be used for any purpose other than to identify prospective properties consumers may be interested in purchasing. All information deemed reliable but not guaranteed and should be independently verified. All properties are subject to prior sale, change or withdrawal. RealHub website owner shall not be responsible for any typographical errors, misinformation, misprints and shall be held totally harmless.

Real Estate Advisor
MissyOrmand
Call Missy today to schedule a private showing.

* Listings on this website come from the FMLS IDX Compilation and may be held by brokerage firms other than the owner of this website. The listing brokerage is identified in any listing details. Information is deemed reliable but is not guaranteed. If you believe any FMLS listing contains material that infringes your copyrighted work please click here to review our DMCA policy and learn how to submit a takedown request.© 2024 FMLS.

