Property
Beds
4
Full Baths
2
1/2 Baths
None
Year Built
2004
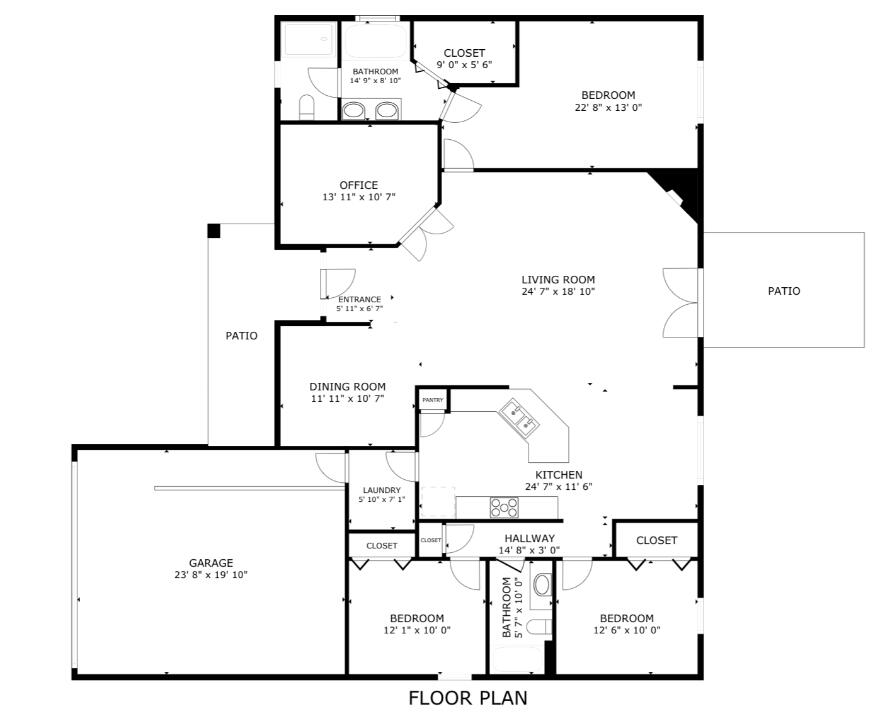
Sq.Footage
2,211
3/2 PLUS a FLEX space with an amazing view in Crestview on nearly HALF AN ACRE! This home has many amazing features including: LVP flooring, updated kitchen and bathrooms, formal dining space, plus an additional flex space/office! HVAC and Water Heater are BRAND NEW! Outside you will enjoy the workshop, shaded back yard, and beautiful view of the lake through the treetops! 4th bedroom/flex is currently used as an office. Additional updates include: Roof 2022, Water Heater 2025, HVAC 2025, gutters and more! Schedule your showing today!
Features & Amenities
Interior
-
Other Interior Features
Breakfast Bar
-
Total Bedrooms
4
-
Bathrooms
2
-
Cooling YN
YES
-
Cooling
Central Air
-
Heating YN
YES
-
Heating
Electric, Central
-
Pet friendly
N/A
Exterior
-
Garage
Yes
-
Garage spaces
2
-
Parking
Garage Door Opener, Attached
-
Patio and Porch Features
Porch
-
Pool
No
-
View
Lake
Area & Lot
-
Lot Features
Cleared
-
Lot Size(acres)
0.45
-
Property Type
Residential
-
Property Sub Type
Single Family Residence
-
Architectural Style
Traditional
Price
-
Sales Price
$330,000
-
Zoning
Resid Single Family
-
Sq. Footage
2, 211
-
Price/SqFt
$149
HOA
-
Association
YES
-
Association Fee
$95
-
Association Fee Frequency
Annually
-
Association Fee Includes
N/A
School District
-
Elementary School
Northwood
-
Middle School
Davidson
-
High School
Crestview
Property Features
-
Stories
1
-
Sewer
Septic Tank
-
Water Source
Public
Schedule a Showing
Showing scheduled successfully.
Mortgage calculator
Estimate your monthly mortgage payment, including the principal and interest, property taxes, and HOA. Adjust the values to generate a more accurate rate.
Your payment
Principal and Interest:
$
Property taxes:
$
HOA fees:
$
Total loan payment:
$
Total interest amount:
$
Location
County
Okaloosa
Elementary School
Northwood
Middle School
Davidson
High School
Crestview
Listing Courtesy of Heather Vaughn , The Property Group 850 Inc
RealHub Information is provided exclusively for consumers' personal, non-commercial use, and it may not be used for any purpose other than to identify prospective properties consumers may be interested in purchasing. All information deemed reliable but not guaranteed and should be independently verified. All properties are subject to prior sale, change or withdrawal. RealHub website owner shall not be responsible for any typographical errors, misinformation, misprints and shall be held totally harmless.

Real Estate Advisor
MissyOrmand
Call Missy today to schedule a private showing.

* Listings on this website come from the FMLS IDX Compilation and may be held by brokerage firms other than the owner of this website. The listing brokerage is identified in any listing details. Information is deemed reliable but is not guaranteed. If you believe any FMLS listing contains material that infringes your copyrighted work please click here to review our DMCA policy and learn how to submit a takedown request.© 2024 FMLS.
