Property
Beds
3
Full Baths
2
1/2 Baths
None
Year Built
1945
Sq.Footage
1,609
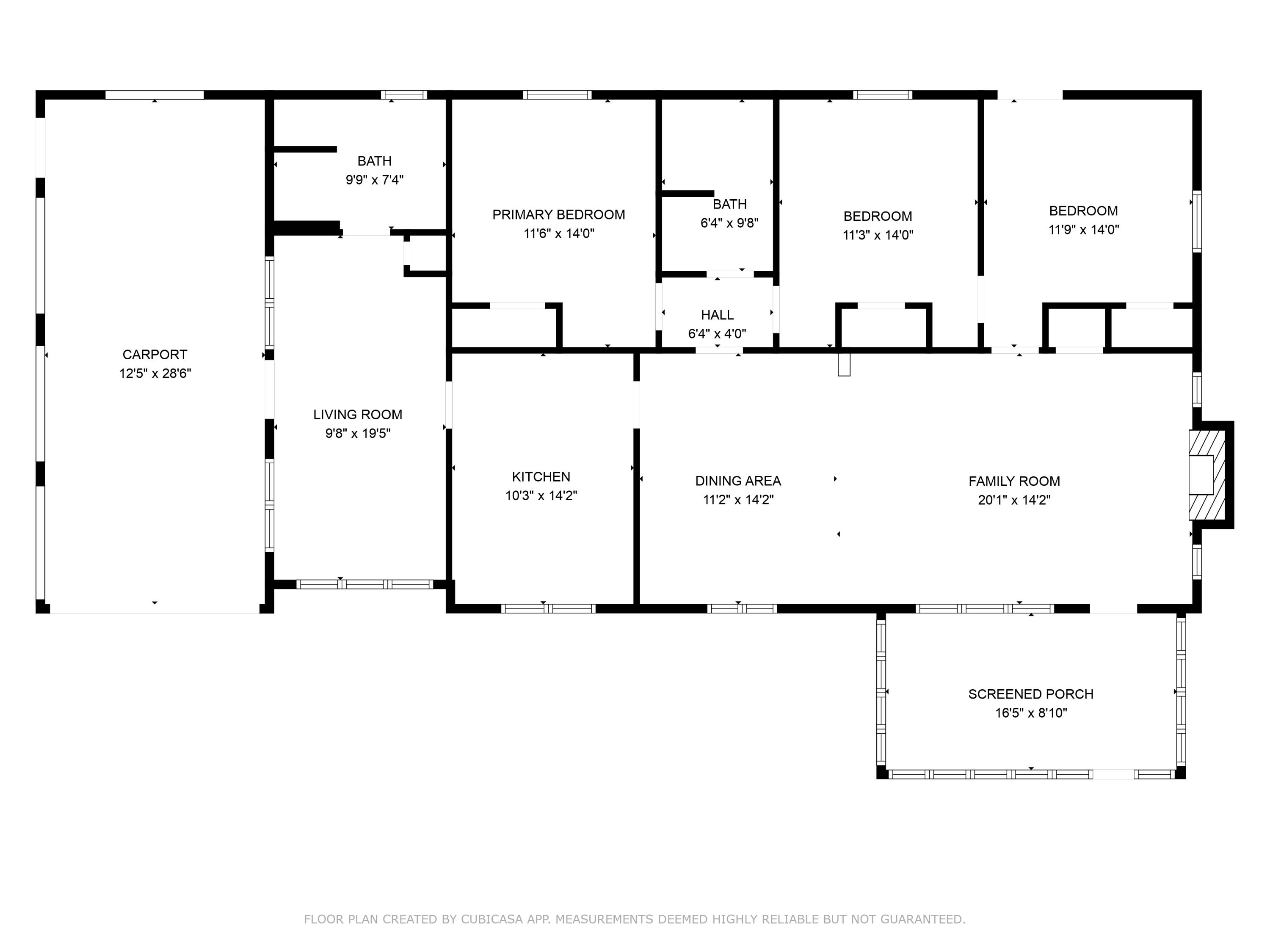
Welcome to 11631 Highway 77, an exceptional opportunity to own a residence on over 8.4 acres of peaceful, private land in Southport, Florida. Surrounded by serene Florida pines with no neighbors in sight, this updated estate offers the rare combination of space, seclusion, and convenience. Properties offering this much acreage and privacy are few and far between. Inside, the home offers three generous bedrooms, two full bathrooms, and two inviting living areas, including a cozy space centered around a wood-burning fireplace. The open layout between the dining and living areas provides a warm and welcoming setting for both everyday living and entertaining. The home has been tastefully renovated with a newer 30-year dimensional shingle roof, hot water heater (2022), updated HVAC systems (interior and exterior units, 2021), all-new plumbing and electrical, updated lighting fixtures, and luxury vinyl plank flooring throughout. The kitchen has been refreshed with updated cabinets, countertops, and appliances, blending modern comfort with country charm. Outside, the property includes multiple storage sheds, a new septic tank and drain field, and a new tank on the well. Zoned agricultural with potential for future commercial rezoning, this property is as versatile as it is peaceful. With no HOA and low homeowner's insurance, this is the perfect place to enjoy the quiet life with room to grow. Schedule your private showing today.
Features & Amenities
Interior
-
Total Bedrooms
3
-
Bathrooms
2
-
Cooling YN
YES
-
Cooling
Ceiling Fan(s), Central Air
-
Heating YN
YES
-
Heating
Electric, Central
-
Pet friendly
N/A
Exterior
-
Garage
No
-
Parking
Attached
-
Patio and Porch Features
Porch, Screened
-
Pool
No
Area & Lot
-
Lot Size(acres)
8.42
-
Property Type
Residential
-
Property Sub Type
Single Family Residence
-
Architectural Style
Traditional
Price
-
Sales Price
$435,000
-
Zoning
Agriculture
-
Sq. Footage
1, 609
-
Price/SqFt
$270
HOA
-
Association
No
School District
-
Elementary School
Southport
-
Middle School
Deane Bozeman
-
High School
Deane Bozeman
Property Features
-
Stories
1
-
Sewer
Septic Tank
-
Water Source
Well, Private
Schedule a Showing
Showing scheduled successfully.
Mortgage calculator
Estimate your monthly mortgage payment, including the principal and interest, property taxes, and HOA. Adjust the values to generate a more accurate rate.
Your payment
Principal and Interest:
$
Property taxes:
$
HOA fees:
$
Total loan payment:
$
Total interest amount:
$
Location
County
Bay
Elementary School
Southport
Middle School
Deane Bozeman
High School
Deane Bozeman
Listing Courtesy of Kaci A Hawes , ERA Neubauer Commercial
RealHub Information is provided exclusively for consumers' personal, non-commercial use, and it may not be used for any purpose other than to identify prospective properties consumers may be interested in purchasing. All information deemed reliable but not guaranteed and should be independently verified. All properties are subject to prior sale, change or withdrawal. RealHub website owner shall not be responsible for any typographical errors, misinformation, misprints and shall be held totally harmless.

Real Estate Advisor
MissyOrmand
Call Missy today to schedule a private showing.

* Listings on this website come from the FMLS IDX Compilation and may be held by brokerage firms other than the owner of this website. The listing brokerage is identified in any listing details. Information is deemed reliable but is not guaranteed. If you believe any FMLS listing contains material that infringes your copyrighted work please click here to review our DMCA policy and learn how to submit a takedown request.© 2024 FMLS.
