Property
Beds
4
Full Baths
2
1/2 Baths
None
Year Built
2025
Sq.Footage
1,856
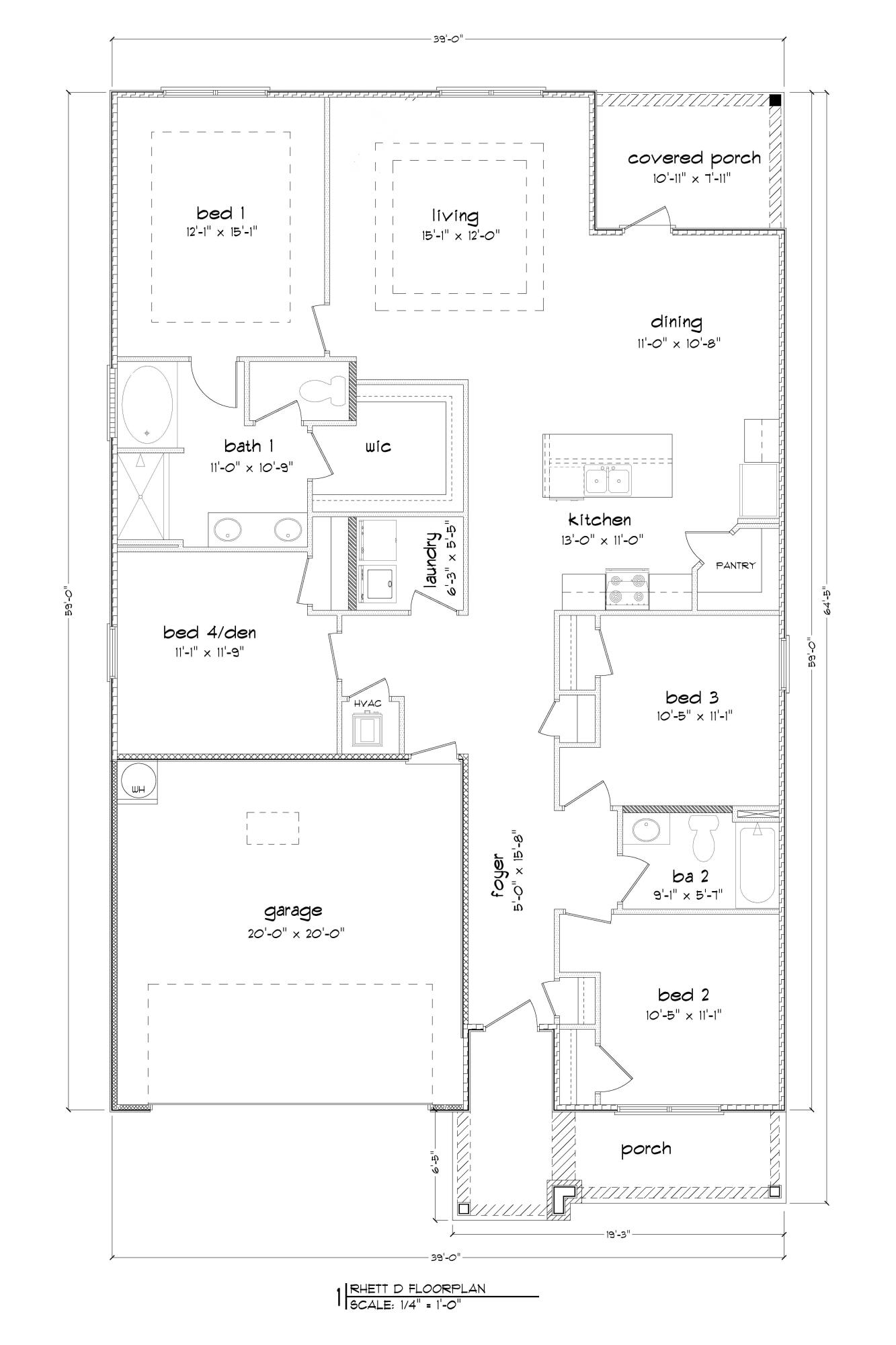
Welcome to 169 Holley Grove Lane, a new home at Holley Grove at Peach Creek in Santa Rosa Beach, Florida. This home is under construction and has a warm entry hall that leads into a generously sized living area, where natural light creates an inviting atmosphere. The heart of the home, an expansive kitchen, has a practical center island with quartz countertops, perfect for meal prep and space for bar seating. It has white upper and lower cabinetry throughout and a large corner pantry where storage will never be a concern. Entertaining is a breeze with the kitchen's seamless flow into the living and dining areas with EVP flooring throughout. The kitchen has a stainless-steel appliance including a smooth top stove, microwave and dishwasher. The primary bedroom is tucked away for privacy and features EVP flooring, and a spacious ensuite bath complete with a dual sink vanity, separate shower, and indulgent soak tub and a large closet. The home's three additional bedrooms, each with substantial closets, share a full bathroom equipped with a shower-tub combo. A large laundry room off the entry hall adds to the home's practicality. Additionally, the two-car garage provides ample space for vehicles and storage. Outside, the covered entry and back patio offer the perfect backdrop for relaxation or dining under the Florida sky. With its thoughtful design and attractive features, The Rhett floor plan is the ideal home for making lasting memories.
Features & Amenities
Interior
-
Other Interior Features
Kitchen Island, Pantry
-
Total Bedrooms
4
-
Bathrooms
2
-
Cooling YN
YES
-
Cooling
Ceiling Fan(s), Central Air
-
Heating YN
YES
-
Heating
Electric, Central
-
Pet friendly
N/A
Exterior
-
Garage
No
-
Parking
Garage Door Opener, Attached
-
Patio and Porch Features
Covered
-
Pool
No
Area & Lot
-
Property Type
Residential
-
Property Sub Type
Single Family Residence
-
Architectural Style
Traditional
Price
-
Sales Price
$521,685
-
Zoning
Resid Single Family
-
Sq. Footage
1, 856
-
Price/SqFt
$281
HOA
-
Association
YES
-
Association Fee
$316
-
Association Fee Frequency
Quarterly
-
Association Fee Includes
N/A
School District
-
Elementary School
Dune Lakes
-
Middle School
Emerald Coast
-
High School
South Walton
Property Features
-
Stories
1
-
Sewer
Public Sewer
-
Water Source
Public
Schedule a Showing
Showing scheduled successfully.
Mortgage calculator
Estimate your monthly mortgage payment, including the principal and interest, property taxes, and HOA. Adjust the values to generate a more accurate rate.
Your payment
Principal and Interest:
$
Property taxes:
$
HOA fees:
$
Total loan payment:
$
Total interest amount:
$
Location
County
Walton
Elementary School
Dune Lakes
Middle School
Emerald Coast
High School
South Walton
Listing Courtesy of Pamela K Hawkins , DR Horton Realty of Emerald Coast LLC
RealHub Information is provided exclusively for consumers' personal, non-commercial use, and it may not be used for any purpose other than to identify prospective properties consumers may be interested in purchasing. All information deemed reliable but not guaranteed and should be independently verified. All properties are subject to prior sale, change or withdrawal. RealHub website owner shall not be responsible for any typographical errors, misinformation, misprints and shall be held totally harmless.

Real Estate Advisor
MissyOrmand
Call Missy today to schedule a private showing.

* Listings on this website come from the FMLS IDX Compilation and may be held by brokerage firms other than the owner of this website. The listing brokerage is identified in any listing details. Information is deemed reliable but is not guaranteed. If you believe any FMLS listing contains material that infringes your copyrighted work please click here to review our DMCA policy and learn how to submit a takedown request.© 2024 FMLS.
